みなさんは、建築家・設計事務所に、注文住宅を依頼すると
設計料が高く、高級なものしか受託して頂けないと思っておりませんか。
それは、間違っております。
狭小注文住宅から高品質ローコスト注文住宅、賃貸併用住宅、共同住宅等、
何でも、建主の要望に応じて
コスト管理・品質管理・工程管理を徹底し、
納得できる住まいを設計しているのです。



建築家がハウスメーカー並の仕様の住まいを設計すると、幾らでできるのか・・・?
高品質ローコスト注文住宅は、そんな疑問からはじまりました。
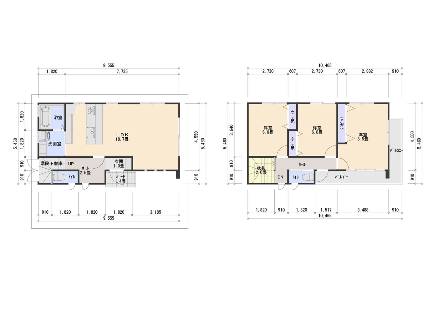
延べ面積30坪で1,250万円
35坪で1,350万円
しかも、設計監理料も含んだ金額で
高品質ローコスト注文住宅を建てることが可能なのです。









