ローコスト注文住宅

ローコスト注文住宅を建築家と建てる 概要・費用・手法
  • 株式会社マックスネット・コンサルタント一級建築士事務所
  • お問い合わせ
  • TEL:03-6380-3007
  • MAIL:katase@maxnet-g.co.jp

高品質ローコスト注文住宅 参考プラン集

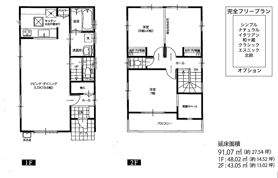
ケース1-狭小地の高品質ローコスト注文住宅ー東側玄関タイプ

ケース1-狭小地のローコスト注文住宅ー東側玄関タイプ

*コンパクトな3LDK
*2Fリビングタイプも変更可能
*吹き抜け対応可能
40万/坪~施工可能
*奥行きの少ない敷地に最適
お問い合わせ

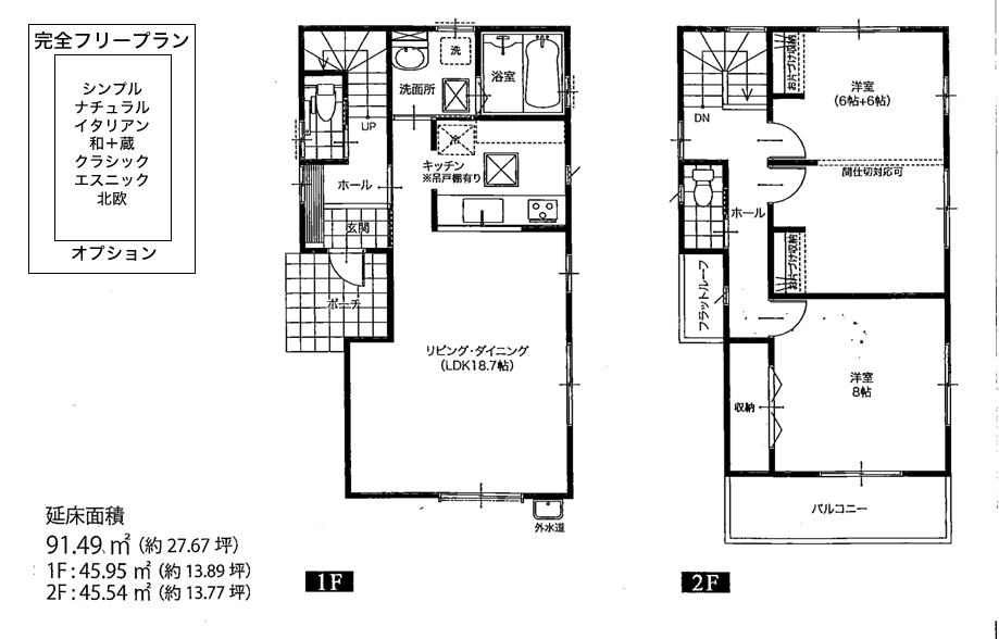
ケース2-狭小地の高品質ローコスト注文住宅ー南側玄関タイプ

ケース2-狭小地のローコスト注文住宅ー南側玄関タイプ

*コンパクトな3LDK
*2Fリビングタイプも変更可能
*吹き抜け対応可能
40万/坪~施工可能
*間口の少ない敷地に最適
お問い合わせ

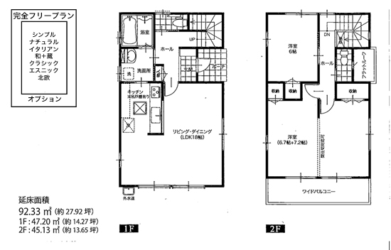
ケース3-狭小地の高品質ローコスト注文住宅ー西側玄関タイプ

ケース3-狭小地のローコスト注文住宅ー西側玄関タイプ

*コンパクトな3LDK
*2Fリビングタイプも変更可能
*吹き抜け対応可能
40万/坪~施工可能
*間口の少ない敷地に最適
お問い合わせ

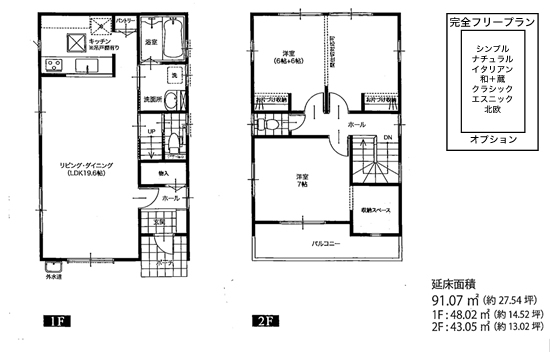
ケース4-狭小地の高品質ローコスト注文住宅ー北側玄関タイプ

ケース4-狭小地のローコスト注文住宅ー北側玄関タイプ

*コンパクトな3LDK
*2Fリビングタイプも変更可能
*吹き抜け対応可能
40万/坪~施工可能
*間口の少ない敷地に最適
お問い合わせ

プライバシーポリシーサイトポリシー・お問い合わせサイトマップ

Copyrightc2009 MaxNetGroup All Rights Reserved.